您好!欢迎来到- 无锡工源环境装备技术有限公司官方网站!
Language: | 网站地图 | 联系我们

专注于为改善水环境

提供性价比高的技术装备与服务

全国服务热线:

400-0510-103

产品分类

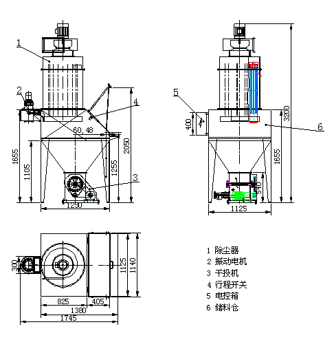
粉体包装袋卸料站

粉体包装袋卸料站

可在开袋、倒料操作时防止粉尘外溢,改善操作条件

倒料门设气动阻尼配件,轻松开门、关门

设除尘器使排出空气无粉尘,除尘器自带清灰装置

可选:干投机实现定量供料

可选:输送机和溶解槽制备适当浓度的溶液


全国免费服务热线:400-0510-103

电话:0510-85950018

手机:13584195549

传真:0510-85950258

邮箱:swb@wxgyhj.com

地址:无锡市锡山开发区春晖东路151-22

top